7 BEDROOMS | FORMAL AND FAMILY LOUNGES | LIBRARY | MEDIA ROOM | ROOF LOUNGE AND TERRACE
- Floor type: SQ. FT.
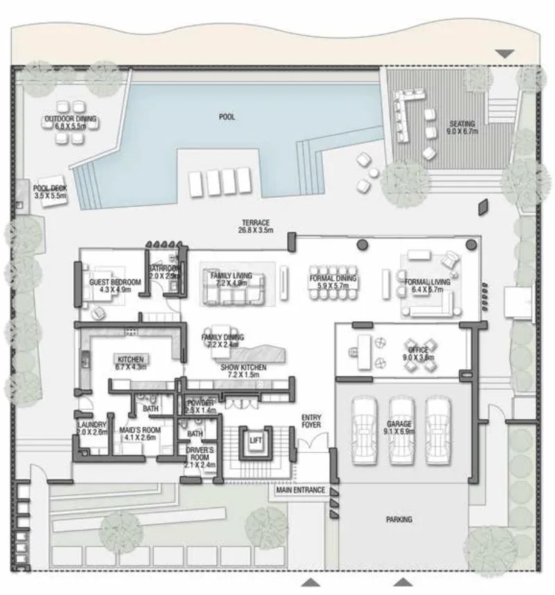
- Ground Floor: 3784
- Balcony / Terrace / Porch-GF: 0
- First Floor Area: 3934
- Balcony / Terrace / Porch-GF: 788
- Second Floor Area: 1943
- Balcony / Terrace / Porch-GF: 995
- Garage — Covered: 645
- Total Built-Up Area: 12,140



