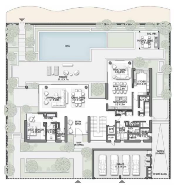
7 BEDROOMS | FORMAL AND FAMILY LOUNGES

| ROOF LOUNGE AND TERRACE



FLOOR TYPE                                                                        SQ. FT.

Ground Floor                                                                     3,700

Balcony / Terrace / Porch-GF                                        69

First Floor Area                                                                 4,023

Balcony / Terrace / Porch-GF                                       395

Second Floor Area                                                          2,253

Balcony / Terrace / Porch-GF                                       842

Garage - Covered                                                          879

TOTAL BUILT-UP AREA                                                      12,165